it
Home Global Contatto Contatto
Nouveauté
Prezzo
7 000 000 €

MAGNIFICO APPARTAMENTO DI 4 LOCALI - CARRE D'OR - RISTRUTTURATO

Appartamento Monaco Rif. : V-215

Présentation

Situato nel cuore del prestigioso Carré d’Or, all’interno di una residenza di lusso con servizio di concierge, questo appartamento, attualmente in fase di ristrutturazione, unisce fascino e comfort moderni.
Vanta una posizione privilegiata nelle immediate vicinanze del centro commerciale Le Métropole, della Place du Casino e di tutti i servizi essenziali.

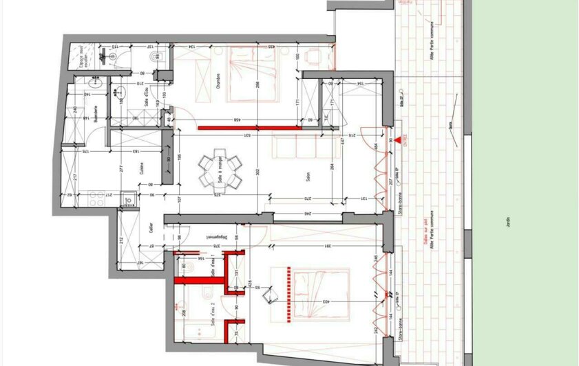
L'appartamento beneficia di un ingresso privato e si apre su un bellissimo cortile interno protetto. È composto da un soggiorno, sala da pranzo, 2 camere da letto (con la possibilità di crearne una terza), 3 bagni, una cucina americana completamente attrezzata aperta sul soggiorno, una lavanderia ed una grande terrazza che permette di godere appieno dello spazio esterno. Ci sono diversi armadi a muri che permettono di  ottimizzare gli interni. Un posto auto privato per due veicoli ed una cantina completano questa proprietà.

 

Informations

Tipo di proprietà
Appartamento
Superficie totale
190 m²
Superficie abitabile
108 m²
Nombre de chambres
3
Nombre de s.d.b.
3
Nombre de parkings
1
Residenza
Les Acanthes
Quartiere
Carré d'Or (Monaco)

Emplacement

Pour plus d'informations, contactez-nous

+377 92 16 58 00

* Campi obbligatori


Convidere su :